
DWT-Ⅱ型玻璃钢离心式屋顶通风机
DWT-II型玻璃离心屋顶通风机可用于压力要求较高的场所。其底座、叶轮、风帽、均采用优质玻璃钢复合材质制作而成。适用于工矿企业、车间、仓库、体育馆、影剧院、发电厂、化验室、橡胶厂、汽车厂、摩托车厂及纺织、冶金等场所通风换气使用。本系列风机具有造型美观,结构紧凑、强度高、重量轻、耐腐蚀、抗老化、耗电省、噪音低、运转可靠、经济实用、安装维修方便等特点。其所输送气体不允许含有粘性物质、所含粉尘及硬质颗粒≤150mg/m3、气体温度≤60℃、相对湿度≤100%。DWT-II series of axial fiber glass roof fan
The DWT-lI type glass centrifugal roof fan can be used for places with higher pressure requirements. The base, impeller, cap, are made of high quality glass fiber composite material produced. It is suitable for ventilation and ventilation in industrial and mining enterprises, workshops, warehouses, gymnasiums, theaters, power plants, laboratory, rubber factories, automobile factories, motorcycle factories, textile and metallurgy places. This series of fans is characterized by beautiful appearance, compact structure, high strength, light weight, corrosion resistance, anti-aging, low power consumption, low noise, reliable operation, economical and practical, convenient installation and maintenance. The gas is not allowed to contain viscous substances, dust and hard particles is less than or equal to 150mg/m3, the gas temperature are less than 60, the relative humidity is less than 100%.|
机 号 Model(No) |
||||
|---|---|---|---|---|
|
功 率 Power(Kw) |
转 速 Speed(r/min) |
流 量 Volume(M3/h) |
全 压 Pressure(Pa) |
|
| 3 | 1.5 | 2900 | 2205-1198 | 176-284 |
| 0.75 | 1450 | 614-878 | 220-122 | |
| 3.5 | 2.2 | 2900 | 4380-3451 | 150-700 |
| 1.1 | 1450 | 1179-1393 | 299-166 | |
| 4 | 1.1 | 1450 | 1320-1803 | 412-298 |
| 0.75 | 960 | 1925-1428 | 80-100 | |
| 4.5 | 1.1 | 1450 | 2076-3159 | 495-231 |
| 0.75 | 960 | 2758-1932 | 100-200 | |
| 5 | 2.2 | 1450 | 2848-4280 | 615-378 |
| 1.1 | 960 | 4284-3129 | 100-200 | |
| 0.55 | 710 | 2961-1715 | 80-150 | |
| 6 | 5.5 | 1450 | 14000-11900 | 150-500 |
| 3 | 960 | 6888-10115 | 150-300 | |
| 1.1 | 710 | 3519-5137 | 385-223 | |
| 7 | 7.5 | 1450 | 18900-16800 | 200-500 |
| 3 | 960 | 5610-8342 | 548-371 | |
| 1.1 | 710 | 9660-7980 | 200-500 | |
| 8 | 11 | 1450 | 28000-25060 | 100-200 |
| 4 | 960 | 18200-16800 | 150-300 | |
| 2.2 | 710 | 13860-12000 | 100-200 | |
| 10 | 18.5 | 960 | 26233-18743 | 1395-1104 |
| 7.5 | 710 | 12942-14252 | 637-805 |
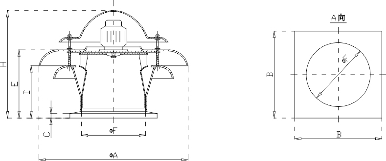
产品为人工实物测量会有一定误差,相关数据仅作参考,以收到的实物为准。 单位Unit: mm(毫米)
| 机号 | |||||||
|---|---|---|---|---|---|---|---|
| 外形尺寸 | |||||||
| NO | ΦA | B | C | D | E | ΦF | H |
| 3 | 667 | 500 | 60 | 320 | 520 | 305 | 722 |
| 3.5 | 970 | 560 | 60 | 340 | 540 | 360 | 778 |
| 4 | 970 | 660 | 60 | 340 | 600 | 400 | 823 |
| 4.5 | 1143 | 700 | 60 | 400 | 700 | 460 | 853 |
| 5 | 1143 | 750 | 60 | 420 | 750 | 488 | 968 |
| 6 | 1280 | 840 | 60 | 480 | 910 | 580 | 1046 |
| 7 | 1280 | 900 | 60 | 500 | 930 | 710 | 1249 |
| 8 | 1410 | 1000 | 60 | 500 | 1060 | 800 | 1373 |
| 10 | 1760 | 1300 | 60 | 560 | 1260 | 1010 | 1580 |
欢迎进入“万通风机”官方网站
Welcome to Wantong Xingfeng official website
![]() |
广州市万通通风设备有限公司 广州市万通通风设备有限公司(注册商标:万通星风)是一家研发、生产、销售、安装通风设备、大气污染防治设备的多元化专业性企业。产品广泛用于:电镀、化工、电子、电气、线路板、机械、电站、电厂、科研、医院、实验室、矿业、冶炼、橡胶、林业、皮革、纸业、陶瓷、模具车间、汽车制造,新能源机械等配套以及各种含有腐蚀性气体的场合。每一个产品都见证了万通的品质,让万通立足全国,走向世界!经过十几年发展“万通星风”已汇聚了一群技术精湛,经验丰富的专业技术人员,引进消化国内外先进技术,是国内拥有自主研发大气污染防治设备、防腐风机能力的厂家。“国际品质、万通打造” 全国服务热线: |
广州总公司
Guangzhou General Corporation
![]() |
销售电话: |
![]() |
官方网址: |
![]() |
电子邮箱:wantongfj@qq.com |
![]() |
![]() |
地址:广州市番禺区沙湾镇动车街33号之二 路线:广州地铁3号线到番禺广场站下,换乘公交车番68路、到古东村总站下。 |
|||
公司地图
Company map
咨询:DWT-II型玻璃钢屋顶离心风机
* 为必填项
广州市万通通风设备有限公司
销售电话:
ONLINE CONSUL TATION